News Flash Home
The original item was published from 8/25/2021 11:13:04 AM to 9/10/2021 4:30:09 PM.

News Flash

Home

Posted on: August 25, 2021

[ARCHIVED] Wayne County Seeks Investor/Operator for Cheese-Making Plant

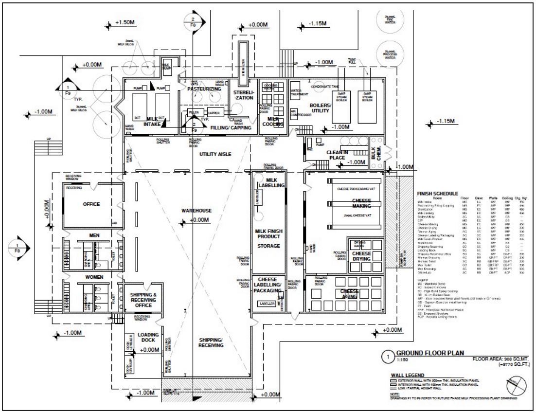
An image of the floor plan drawings for the proposed Dairy Processing Plant.

HONESDLAE (Aug, 25, 2021) -- The Wayne County Commissioners seek a qualified individual or company to join a public-private venture intended to bolster the local dairy industry as a fundamental part of the county’s economy and rural character.

With the help of USDA Rural Development, Wayne County conducted a feasibility study, developed a business plan and even selected a potential site for a Dairy Processing Plant.

The study, performed by Shepstone Management, indicated a Dairy Processing Plant focused on the specialty cheese market could show a profit and provide a premium to the dairy farmers whose cows will provide the raw materials.

The study showed the key to making the project viable will be focusing on the New York metropolitan market, where cheese spending is twice that of the US average, and Hispanic cheeses, which have seen significant growth in per capita consumption in the past 20 years.

The relatively small plant would have the capacity to support eight 75-cow herds, pay dairy farmers a $2 premium per hundredweight of milk and directly employ approximately 10 people.

The project, cultivated by the Wayne Tomorrow! Agriculture Task Force, resulted from the recommendations of the Economic Development Plan for Agriculture, presented in 2019. That study focused on ways Wayne County can revive agriculture, and the dairy industry in particular, and use it as a driver for economic development and community resiliency.

The county has no expertise in operating a cheese plant nor do the commissioners want to go into the cheese business. Instead, the county has done the studies and market research, developed a plan and created a series of incentives designed to help the project succeed.

According to County Commissioners Brian Smith, Joseph Adams and Jocelyn Cramer, this is a major step in a long-running effort to revitalize the local agriculture community.

The Request for Proposals is available online along with the Dairy Processing Plant Feasibility Study and Business Plan. Those proposals are due to the Commissioners’ Office by Oct. 8 at 4:30 pm.

For more WT! Studies and Research visit www.WayneTomorrow.com.

Request for Proposals . . .
Facebook Twitter Email